CAMPI ELISI – TRILOCALE RISTRUTTURATO CON BALCONE

  • €265.000
Via del Lloyd, 5, Trieste, TS, Italia
  • 3
  • Locali
  • 2
  • Camere
  • 1
  • Bagno
  • 93
  • Ascensore
  • 5
  • Piano
  • Centralizzato, a Radiatori, ad Aria
  • Riscaldamento
Vendita
CAMPI ELISI – TRILOCALE RISTRUTTURATO CON BALCONE
Via del Lloyd, 5, Trieste, TS, Italia
  • €265.000

Descrizione

TRILOCALE ELEGANTEMENTE RIFINITO IN PARCO CONDOMINIALE.

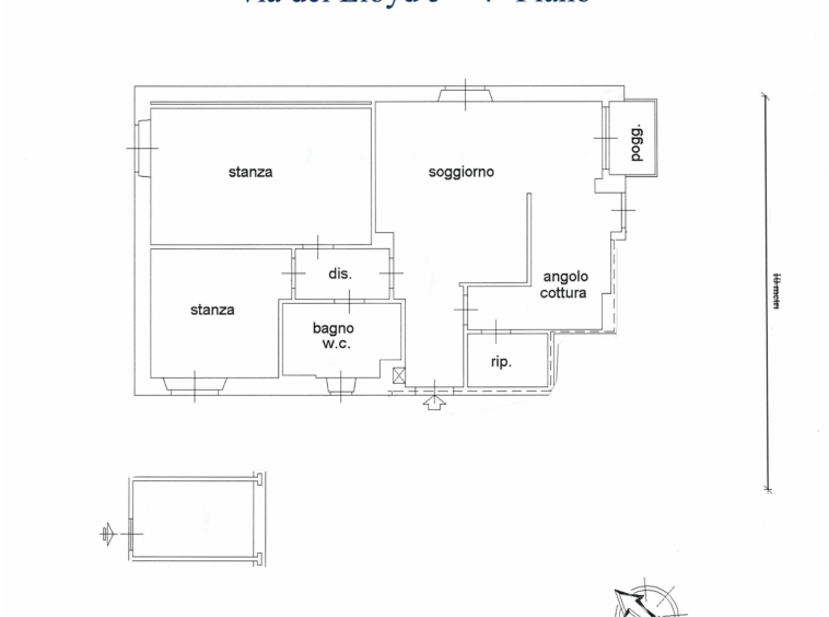
CAMPI ELISI (Via dei Lloyd 5): Trilocale di 93 mq sito 4° piano con ascensore. Palazzo del 1954 posto all’interno di un parco privato con giardino condominiale.

COMPOSIZIONE: ingresso, zona giorno con angolo cottura e uscita al balcone, ripostiglio, bagno completo/finestrato e due camere da letto. Completa la proprietà una cantina al piano terra.

APPARTAMENTO FINEMENTE ED ELEGANTEMENTE RISTRUTTURATO. LA PROPRIETA’ VALUTA DI VENDERE L’IMMOBILE PARZIALMENTE ARREDATO.

Porta blindata, infissi Finestral in PVC con anta a ribalta e chiusura/apertura automatizzata, parquet in rovere (legno nobile) in tutta la casa, porte interne Garofoli, bagno rifatto con rifiniture Balneum e piatto doccia in ardesia.

Il parco condominiale è composto da un ampio e ben curato giardino e da uno spazio dedicato al parcheggio dei motorini. L’impianto gas a servizio del civico 5 e di ogni suo alloggio è stato rifatto nuovo pochi mesi fa.

Ambienti climatizzati, riscaldamento centralizzato (spese condominiali di € 160 mensili), caldaia a gas autonoma per l’acqua calda sanitaria. Classe Energetica in fase di realizzazione.

Documenti

PlaN

Dettagli

  • ID Immobile: OV- Lloyd 5-AD
  • Prezzo: €265.000
  • Camere: 2
  • Locali: 3
  • Bagno: 1
  • Anno Costruzione: 1954
  • Tipologia: Appartamento
  • Condizioni interne: Ottimo/Ristrutturato
  • Piano: 5
  • Riscaldamento: Centralizzato, a Radiatori, ad Aria
  • Giardino: Condominiale
  • Categoria Catastale: A/3
  • Rendita Catastale : 557,77
  • Altre informazioni: Libero
  • Spese condominiali: 120
  • Ascensore:
  • Indirizzo Via del Lloyd, 5, Trieste, TS, Italia
  • Città Trieste
  • CAP 34143
  • Area Campi Elisi

Classe energetica

  • Classe energetica: F
  • Indice globale di rendimento energetico: 109,32
  • A++
  • A+
  • A
  • B
  • C
  • D
  • E
  • 109,32 | Classe energetica F
    F
  • G
  • In fase di rilascio

Contatti

Vedi annunci
Opera Immobiliare Ponterosso

Richiedi informazioni su questa proprietà

Annunci simili

Le informazioni, i dati, le immagini, le planimetrie ed i contenuti presenti sul sito hanno scopo puramente illustrativo e non costituiscono elemento contrattuale e/o probatorio.

Sede Principale: Piazza Ponterosso 4/A, Trieste
Filiale: V.le Venti Settembre 24/B, Trieste
P.IVA: 01261830325
Codice Univoco: KRRH6B9

Confronta Strutture

Confronta
Opera Immobiliare Ponterosso
  • Opera Immobiliare Ponterosso